Группа компаний НПК «Завод модульного энергооборудования» предлагает купить ТГУ-НОРД-С 40 котел наружного размещения мощностью 40 кВт двухконтурный без газовой линейки с доставкой по России и гарантией 2 года. Работает на природном и сжиженном газе. Есть в наличии на складе!
ТГУ-НОРД-С - оптимальное решение для отопления и горячего водоснабжения частного дома. Его ключевая особенность — наружная установка (категория размещения 1 по ГОСТ 15150). Он устойчив к экстремальным температурам от -45°C до +40°C. По пожарной опасности установка классифицируется как наружная с категорией «ГН» (СП 12.13130.2009).
ТГУ-НОРД-С 40 котел наружного размещения
![]() |
Не всегда можно размещать наружный котел:
|
Преимущества ТГУ-НОРД-С двухконтурный без газовой линейки
- Упрощённый процесс газификации: монтаж уличного газового котла для отопления частного домаизбавляет от необходимости приводить помещение в соответствие с требованиями газовой инспекции - экономит время и средства;
- Экономия площади: нет нужды выделять отдельное помещение под котельную, устанавливать систему дымоудаления и приточно-вытяжную вентиляцию;
- В базовую комплектацию входят: бытовой газовый котел, светильник светодиодный автономный, коаксикальный дымоход, утепленный корпус, электрический обогреватель, гибкая подводка длинной 1 м, технический паспорт;
- Монтажны йкомплект: всё необходимое для сборки ТГУ-НОРД-С в комплекте поставки;
- Корпус установки выполнен из сендвич-панелей из нержавеющей стали и утеплителя между ними, толщиной 80 мм.
- Контур ГВС
Внутренний газопровод ТГУ-НОРД-С двухконтурный без газовой линейки
На этапе проектирования и монтажа наружного газопровода необходимо установить газовый счётчик со всей требуемой запорной арматурой на подводе к котлу. Непосредственное подключение смонтированного газопровода к ТГУ-НОРД-С котлу наружного размещения выполняется с помощью идущей в комплекте сильфонной подводки.
Монтаж ТГУ-НОРД-С
Установка производится на несущей стене здания или другой несущей конструкции, учитывая определённые требования. В соответствии требованиями для установки ТГУ-НОРД-С котла наружного размещзения, расстояние по горизонтали в свету от корпуса наружного блока сплит-системы до ближайших входных дверей, вентиляционных решеток и открывающихся окон должно составлять не менее 0,5 метра. Расстояние от корпуса до оконных проемов, которые не открываются, специальными нормами не регламентируется. По вертикали в свету необходимо обеспечить зазор от нижней части корпуса до уровня земли или иной поверхности (например, кровли, балкона) минимум в 0,8 метра.
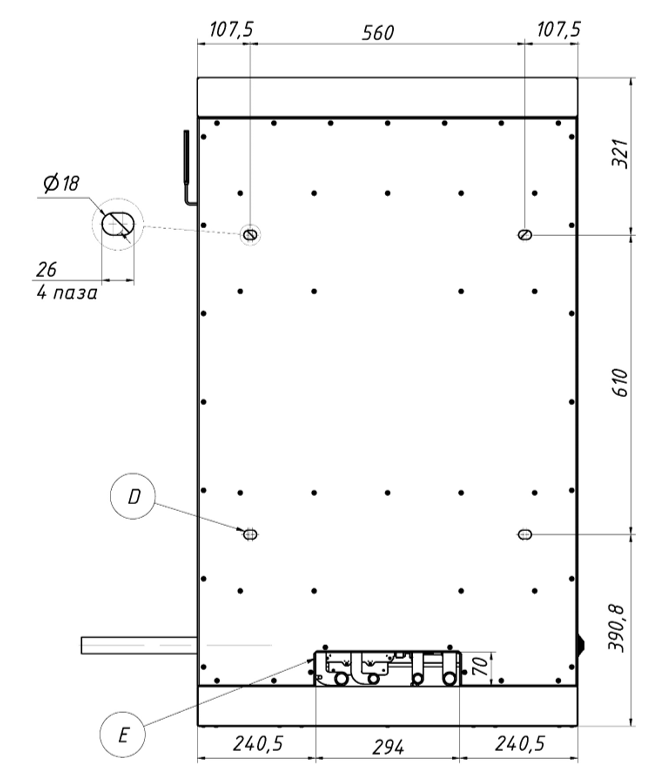
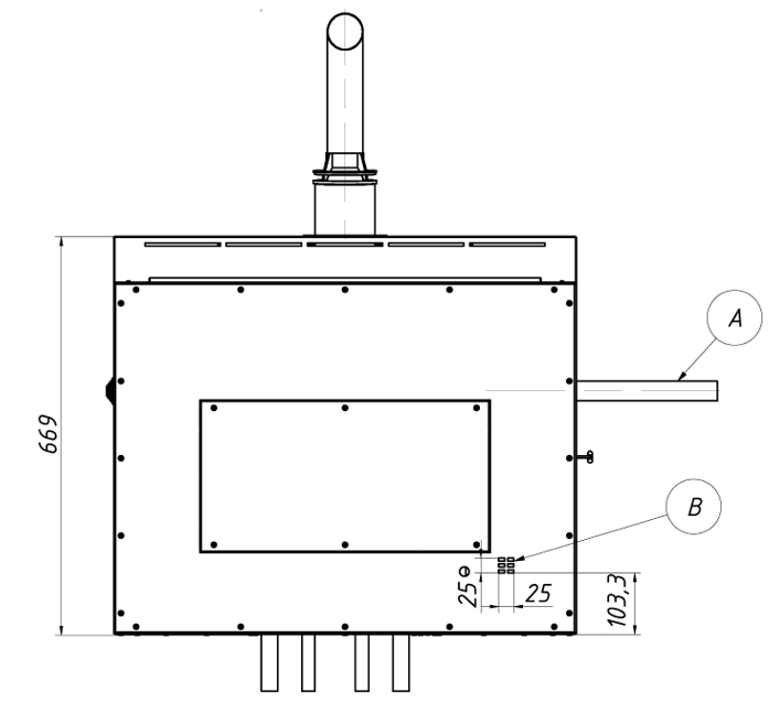
Габаритные размеры ТГУ-НОРД-С



